Tato moderní dřevostavba ve středních Čechách je důkazem, že spojení funkčnosti, estetiky a udržitelnosti nemusí být jen snem.

Pro rodinu s dětmi školního věku bylo v životní perspektivě zásadní zdravé bydlení v souladu s jejich životním stylem. Při rozhodování o stavbě domu byla proto jasnou volbou energeticky úsporná dřevostavba a z nabídek na trhu je jak díky nabídce projektů, tak osobnímu přístupu oslovila společnost Lucern moderní dřevostavby.
Od katalogu k individuálním řešení
Našli pozemek v klidné starší zástavbě na okraji malé středočeské obce, s hezkým okolím a dobrým občanským vybavením. Vybrat projekt rodinného domu, který bude vhodný na protáhlou úzkou parcelu, svažující se od příjezdové komunikace směrem dozadu do zahrady, ale nebylo jednoduché. Přicházelo v úvahu jedině řešení na míru, které se přizpůsobí situaci na pozemku a potřebám rodiny.
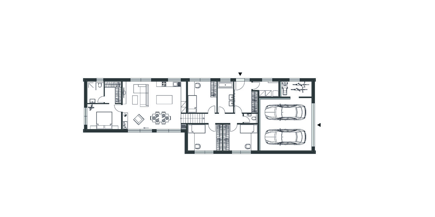
Kompozice domu je rozdělena do dvou lineárně navazujících částí se sedlovými střechami a různou úrovní podlah. Při pohledu z ulice přítomnost rodinného domu prozrazují jen vrata dvougaráže, hlavní vstup do domu je z boku. Následuje zádveří, středová chodba, tři dětské pokoje, koupelna a technická místnost.
Chodba pokračuje otevřeným jednoramenným schodištěm o půl podlaží níže do společného obývacího prostoru, který navazuje na zadní, soukromou část zahrady.
Prostor otevřený do krovu a prosvětlený ze dvou stran působí příjemně vzdušně. Dva HS portály vedou na dřevěnou terasu, situovanou podél východní fasády. Přes obývací pokoj se prochází do zadní části domu, do samostatného rodičovského apartmá s vlastní šatnou a koupelnou.

Zasazeno do přírody
Dům vytápí tepelné čerpadlo, které zajišťuje komfort i nízké provozní náklady. Interiér okouzlí svou vzdušností a světlostí – vysoké stropy s odhalenými trámy, velká okna s venkovními žaluziemi a útulný design v přírodních tónech vytvářejí harmonické prostředí pro život. Zahrada navazuje na architekturu domu s citem pro detail – dřevěná terasa, trvalkové záhony i kamenné prvky vytvářejí příjemné zákoutí pro relaxaci i hravé odpoledne s dětmi. Tento dům je dokonalou ukázkou moderního a udržitelného bydlení s přesahem.
Technické údaje:
Dispozice: 5 + kk + garáž
Zastavěná plocha: 203,10 m2
Užitná plocha: 169,9 m2
Lokalita: východní Čechy
Konstrukce: betonové základové pasy a podkladní deska, difuzně otevřená sloupková dřevostavba, vnější obklad
Vytápění: zdroj energie tepelné čerpadlo De Dietrich vzduch-voda, teplovodní podlahové vytápění
Návrh, stavební projekt a dodavatel: Lucern dřevostavby, s. r. o., www.lucern.cz
Přibližná cena: 9 mil. Kč
Tento dům je dokonalou ukázkou moderního a udržitelného bydlení s přesahem.
Více o tomto domě včetně všech fotografií zde



